Laboratorio in vendita

Torino, Via Chambery 93/107 - Aeronautica
€ 129.000
1 locale 1 locale
350 Mq 350 Mq
1 bagno 1 bagno

Laboratorio in vendita

Torino, Via Chambery 93/107 - Aeronautica

Questo immobile appartiene ad un'unità principale con metratura più ampia

Descrizione annuncio

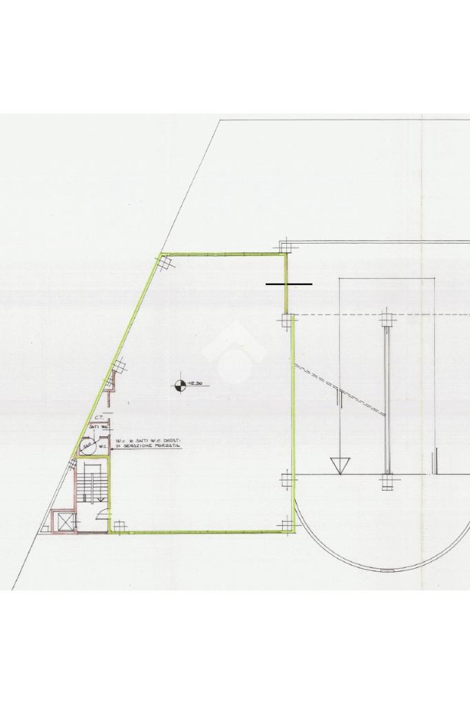
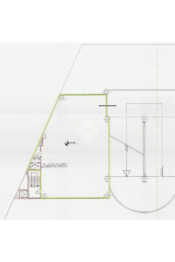
In Zona Aeronautica, al confine con Grugliasco,

proponiamo in vendita un capannone di 350 mq, situato al 2 piano di un edificio industriale costruito nel 1998.

Questo spazio ampio e versatile si presta a diverse soluzioni d'uso, ideale per attività che necessitano di un ambiente spazioso e ben organizzato.

La struttura, con un unico locale open space senza colonne, offre la possibilità di personalizzare gli spazi secondo le proprie esigenze operative.

La posizione strategica garantisce un facile accesso alle principali vie di comunicazione, facilitando la logistica e i collegamenti con il resto della città.

L'immobile rappresenta un'opportunità interessante per chi cerca un investimento solido in una zona ben servita e in continua crescita.

Mostra tutto

Nelle vicinanze

Trasporto pubblico Trasporto pubblico
Marche
Marche
760 m
Massaua
Massaua
980 m
stazione di Grugliasco
stazione di Grugliasco
1,0 Km
De Sanctis
De Sanctis
840 m
Brissogne Capolinea
Brissogne Capolinea
890 m
Ricariche auto elettriche Ricariche auto elettriche
Bluetorino Fidia
1,0 Km
Collegno Pastrengo | ENELX
2,7 Km
COLLEGNO PASTRENGO 34/b | ENELX
2,8 Km
Scuole Scuole
Scuola elementare Martin Luther King
520 m
Scuola media Carlo Levi
580 m
Scuole
600 m
Scuola Elementare di Stato Rosa Agazzi
670 m
Politecnico di Torino – Sede Alenia
820 m
Farmacia Farmacia
Farmacia
180 m
Gancia Dimitri
290 m
Comunale 5 - Afc
320 m
Farmacia Parini
550 m
Farmacia Nuova di Grugliasco
670 m
Ospedali Ospedali
Ospedale Martini
1,2 Km
Ospedale Martini - Emergency
1,2 Km
Ospedali
1,3 Km
Clinica della Memoria "Giovanni Paolo II"
1,5 Km
LARC
2,9 Km
Supermercati Supermercati
Lidl
310 m
Unes
540 m
CRAI Panda Market
640 m
Prestofresco
720 m
EuroSpin
780 m
Negozi Negozi
Pastificio Federico
390 m
Dalla Terra al Cielo
550 m
Negozi
610 m
Delper
830 m
Pesciolino Rosso
900 m
Bar Bar
Bar
380 m
Marinella
400 m
Foodball
540 m
Bar Unico
650 m
Fratelli Martino
890 m
Ristoranti Ristoranti
The Eagle House
710 m
Povero felice
850 m
Foglia d'Acero
850 m
Gustosità
950 m
Riko Sushi
970 m
Mostra tutto

Caratteristiche

Rif.:
61150000
Piano:
2 con ascensore (Piano medio)
Condizionamento:
Assente
Ascensore:
Riscaldamento:
Autonomo
Libero:
Mostra tutto
Prezzo Prezzo
€ 129.000
Rata mutuo Rata mutuo
€ 608 / mese
Proponi il tuo prezzoProponi il tuo prezzo

Classe Energetica

F
F
F
F
F
F
F
F
F
EP globale non rinnovabile:
115.26 kW h/m² anno
EP globale rinnovabile:
0.00 kW h/m² anno
Anno di costruzione:
1998
Riscaldamento:
Autonomo
Tipo impianto:
Ad aria
Tipo alimentazione:
Altro

Ti interessa visionare l'immobile?

Fissa un appuntamento  Fissa un appuntamento

Richiedi informazioni

Clicca su Leggi per aprire l'informativa
* Questi campi sono obbligatori

Calcola il tuo mutuo

Semplice e senza impegno
Anticipo

( % )
Mutuo

( % )

pochi semplici passi

inserisci i tuoi dati
Questionario completato
Grazie per aver richiesto un appuntamento senza impegno con un nostro Consulente del Credito e Assicurativo.

Hai inserito correttamente tutti i dati necessari e a breve riceverai una e-mail con un link da convalidare per inviare i tuoi dati.
Affiliato
Sara 2000 Snc
Corso Francia, 333/4 10139 Torino (TO)
Corso Francia, 333/4 10139 Torino (TO)
Zona: Aeronautica - B.ta Lesna - Pozzo Strada - Viberti - Crocetta
Mostra su mappa
Orari: dal lunedì al venerdì dalle ore 9,00 alle 12,30 e dalle 14,30 alle 19,30; sabato dalle ore 9,00 alle 12,30
Affiliato
Sara 2000 Snc
Corso Francia, 333/4 10139 Torino (TO)

2026 Tecnocasa Franchising S.p.A. - P. IVA 08365160152 - Via Monte Bianco 60/A 20089 Rozzano (MI). Ogni agenzia ha un proprio titolare ed è autonoma. Privacy policy | Policy utilizzo | Cookie policy